Description 説明
點這裏看中文
[su_tabs style=”modern-blue” anchor_in_url=”yes”]
[su_tab title=”Property Info” disabled=”no” anchor=”en” url=”” target=”blank” class=””]
-
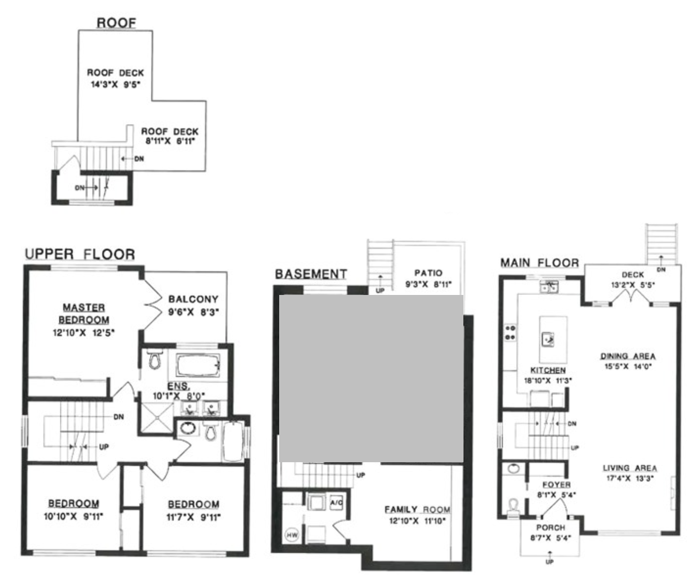
Lord Byng 3 Bed 3 Bath House in Vancouver West
- Location: 4469 W 7th Ave Vancouver
- Property Type: House.
- Floor area (sq. ft.): 2800
-
DETAILS
- Bedrooms: 3
- Bathrooms: 3
- Kitchen: 1
- Living Room: 1
- Laundry: In-suite
- Parking: Street
- Floor: Laminated / Mixed
- Terrific open floor plan with natural light. Gourmet kitchen with top of the line Gaggenau appliances, 3 bedrooms up with a luxurious master ensuite. Roof deck features city, ocean & mountain views. Walking distance to top schools(West Point Grey Academy, Our Lady of Perpetual Help, Lord Byng Secondary School), Point Grey Village, Trimble Park and the beaches.
-
The grey area in the basement is another rental suite, with separate entrance, occupied by a UBC student.PROPERTY FEATURES:
- Clothes Washer/Dryer, Fridge, Stove, Dishwasher, AC
-
SCHOOL CATCHMENT:
- Elementary
K – 7 Queen Mary Elementary
Secondary
8 – 12 Lord Byng Secondary
French Immersion – Secondary
8 – 12 Kitsilano Secondary -
TERM:
- Unfurnished.
Tenant pays gas and 85% elecricity. Rent includes internet.
Min. One year lease. Available now.
No smoking no pets.
Credit check needed.
[su_button url=”#inq” style=”flat” icon=”icon: send-o” background=”#0dbae8″]Schedule a showing[/su_button]
[su_button url=”https://www.bobzhong.com/application/” target=”blank” style=”flat” background=”#4ead5e” icon=”icon: file-text-o”]Rental Application[/su_button]
This property is professionally managed by Rental Property Manager Bob Zhong (Luxmore Realty).
The information contained here is subject to change without notice and does not represent a guarantee or commitment.
[/su_tab]
[su_tab title=”出租信息” disabled=”no” anchor=”cn” url=”” target=”blank” class=””]
-
溫西3房3衛獨立屋Lord Byng校區
- 地址:4469 W 7th Ave Vancouver
- 房屋類型:獨立屋
- 室內面積(平方呎):2800
-
物業信息
- 臥室: 3
衛浴:3
廚房:1
客廳:1
地板:木地板/其它
停車位:Street - 極佳的開放式戶型,自然。美食廚房配有頂級的Gaggenau電器,樓上3間臥室,包括豪華的主套房。屋頂甲板可以遠眺城市、海洋和山景。步行即可到達頂尖學校(West Point Grey Academy, Our Lady of Perpetual Help, Lord Byng Secondary School)、Point Grey Village, Trimble Park 和海灘。
- 主屋地上兩層,另設一個帶獨立入口的地下室套房,目前由一名UBC學生租住。
-
配套設備:
- 洗衣機/幹衣機、冰箱、爐灶、洗碗機、空調
-
校網:
- Elementary
K – 7 Queen Mary Elementary
Secondary
8 – 12 Lord Byng Secondary
French Immersion – Secondary
8 – 12 Kitsilano Secondary -
租約條款:
- 無煙無寵。
無傢具,租客付煤氣費和85%電費;租金包括光纖網路。
一年起租。隨時入住。
需信用調查。
[su_button url=”#inq” style=”flat” icon=”icon: send-o” background=”#0dbae8″]約看[/su_button]
[su_button url=”https://www.bobzhong.com/application/” target=”blank” style=”flat” background=”#4ead5e” icon=”icon: file-text-o”]遞交租房申請[/su_button]
該物業由龍美地產鍾博專業管理,租客開心,業主放心。
[/su_tab]
[su_tab title=”Schedule a showing ⏰ 約看” disabled=”no” anchor=”inq” target=”blank” url=”” class=””]
[/su_tab]
[/su_tabs]

